Hersteller von Messgeräten
English Česky Africa China Español Français Magyar Polski Sweden USA UAE Deutsch

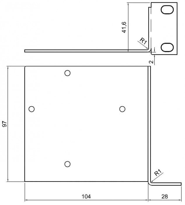
Sensorhalter zur Montage am 19"-Rack

Universalhalterung für P8xxx- und Txxxx-Websensoren zur einfachen Montage in 19"-Racks. Zur Montage benötigte Muttern und Unterlegscheiben sind im Lieferumfang enthalten.

 

  • Code
    MP046